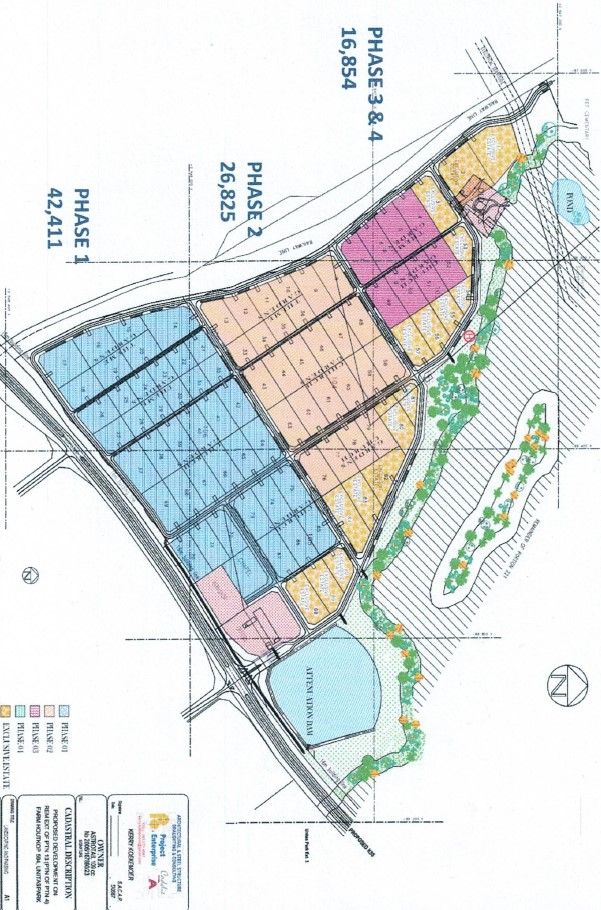
Unitas Memorial Park is a private cemetery situated on Houtkop Street.
The new cemetery currently has 60 000 grave sites that were initially approved, but it was still in a development stage and provision was made
for approximately 80 000 graves. The initial development also made provision for 24/7 armed security, access control and perimeter wall with
electric fence. Other proposed facilities include offices, showroom, gift shop, mortuary, crematorium and chapel.
Zoning: Cemetery.
Size: 120.1420 ha
Share
Whatsapp
Email
X
Facebook